TijdloosBouwnummer 1
Tuinappartement
's-gravenzande€ 315.000 vrij op naam47m2Aantal slaapkamers: 1
beschikbaar

Kenmerken van Bouwnummer 1
Kenmerken van Bouwnummer 1
overdracht
koopsom
€ 315.000 vrij op naam
status
beschikbaar
bouw
soort woning
appartement
soort appartement
benedenwoning
bouwvorm
nieuwbouw
bouwjaar
2024
oppervlakte en inhoud
woonoppervlakte
47m2
inhoud
122m3
Aantal slaapkamers
1
energie
energielabel
A
isolatie
volledig geisoleerd
buiten
ligging
aan water, in woonwijk, vrij uitzicht
tuin type(s)
geen tuin
Bouw gestart juni 2023! Grijp de laatste kans op een woning!
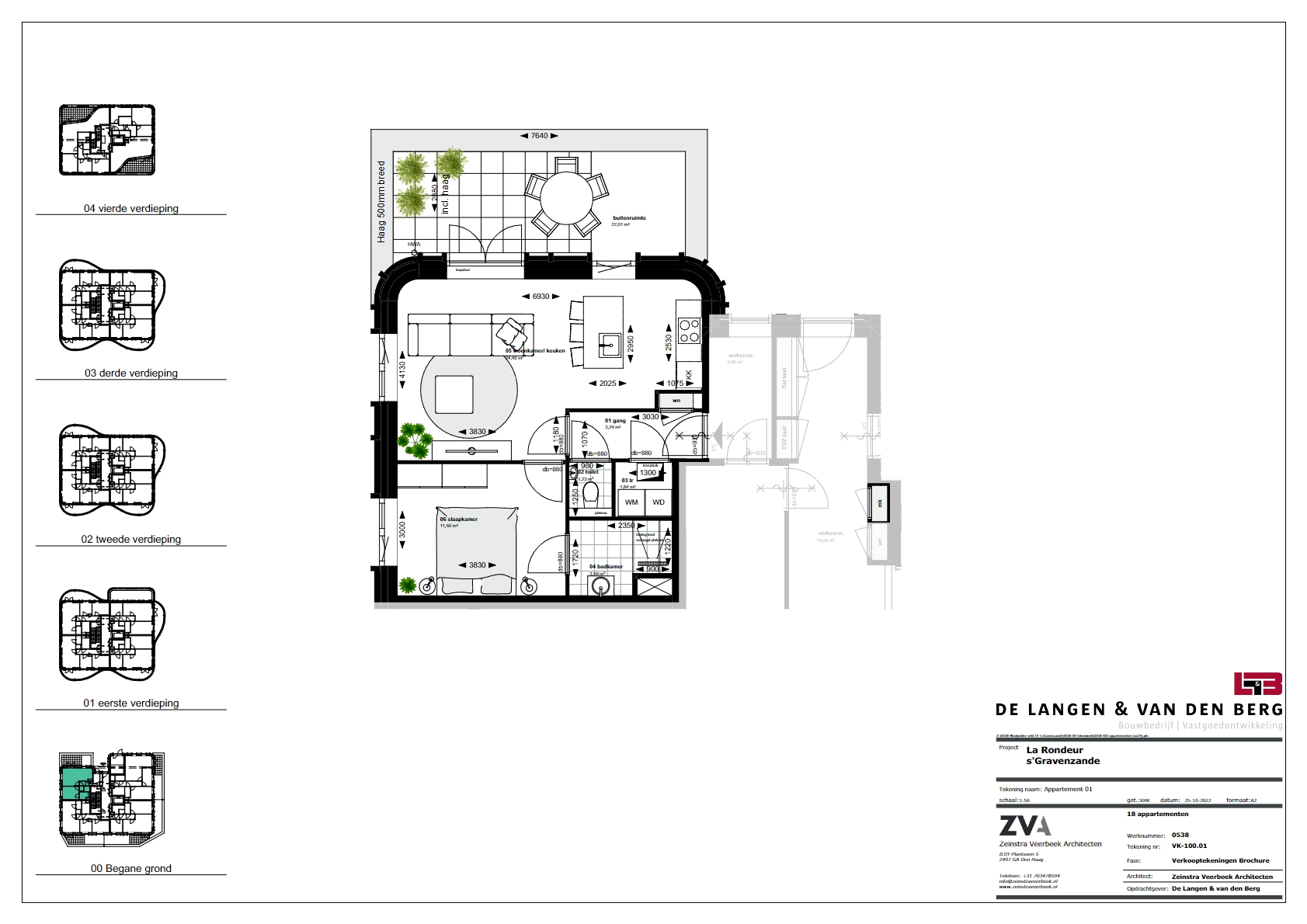
Bouwnummer 1 - kenmerken
• 2-kamerappartement op de begane grond
• Woonoppervlak van circa 47 m²
• Living van circa 24 m²
• 1 slaapkamer met ensuite badkamer
• Badkamer en toilet voorzien van tegelwerk en sanitair
• Terras op het noorden van circa 18 m², waarvan circa 11 m² betegeld
• Vloerverwarming
• Eigen berging in de kelder
• PV-paneel
• mogelijkheid tot kopen van 1 parkeerplaats van €15.000, - *
De tuinappartementen zijn gelegen op de begane grond en variëren in woonoppervlak van 47 tot 74m2. De appartementen zijn ingedeeld met een living met open keuken, één of twee slaapkamers en een badkamer. Elk appartement heeft een eigen tuin op het noorden, zuiden of westen van 18 tot 40m2.
Locatie
Wie kiest voor La Rondeur, kiest voor een rustige, landelijke omgeving in het Westland. De ligging maakt dat u er makkelijk op uit kunt gaan. De oude dorpskern van ’s-Gravenzande met alle voorzieningen is om de hoek. En ook het strand is dichtbij. Den Haag, Delft en Rotterdam zijn eenvoudig te bereiken via N-wegen. Zo staat de N213 bijvoorbeeld in directe verbinding met de A20 richting Rotterdam. Hiernaast komt u via de N222 op de A4 richting Utrecht en Amsterdam. Wie met openbaar vervoer erop uit wil, kan met de bus reizen.
Verkoopprocedure
Woonplicht en anti-speculatie beding
Voor het kopen van een appartement in La Rondeur gelden bepaalde voorwaarden. Kopers zijn verplicht het appartement, over een periode van 5 jaar, zelf te bewonen/gebruiken. Binnen deze periode is het alleen mogelijk het appartement door te verkopen met schriftelijke toestemming van de gemeente. Indien de woning tussentijds verkocht (mag) word(t)(en) geldt er een zogenaamd boetebeding waarbij men de gemeente een percentage van de overwaarde van het appartement verschuldigd is. De penthouses vallen buiten deze regeling.
Ondanks dat TW3 Makelaardij deze aanmelding met grote zorgvuldigheid heeft samengesteld, kunnen geen rechten worden ontleend aan teksten, berekeningen, aanbiedingen evenals aan afgebeelde illustraties en artists-impressions, deze zijn uitsluitend bedoeld als voorbeeld en daardoor niet bindend voor het eindresultaat. Alle informatie, ook prijzen en voorwaarden, kunnen aan verandering onderhevig zijn.
Bouwnummer 1 - kenmerken
• 2-kamerappartement op de begane grond
• Woonoppervlak van circa 47 m²
• Living van circa 24 m²
• 1 slaapkamer met ensuite badkamer
• Badkamer en toilet voorzien van tegelwerk en sanitair
• Terras op het noorden van circa 18 m², waarvan circa 11 m² betegeld
• Vloerverwarming
• Eigen berging in de kelder
• PV-paneel
• mogelijkheid tot kopen van 1 parkeerplaats van €15.000, - *
De tuinappartementen zijn gelegen op de begane grond en variëren in woonoppervlak van 47 tot 74m2. De appartementen zijn ingedeeld met een living met open keuken, één of twee slaapkamers en een badkamer. Elk appartement heeft een eigen tuin op het noorden, zuiden of westen van 18 tot 40m2.
Locatie
Wie kiest voor La Rondeur, kiest voor een rustige, landelijke omgeving in het Westland. De ligging maakt dat u er makkelijk op uit kunt gaan. De oude dorpskern van ’s-Gravenzande met alle voorzieningen is om de hoek. En ook het strand is dichtbij. Den Haag, Delft en Rotterdam zijn eenvoudig te bereiken via N-wegen. Zo staat de N213 bijvoorbeeld in directe verbinding met de A20 richting Rotterdam. Hiernaast komt u via de N222 op de A4 richting Utrecht en Amsterdam. Wie met openbaar vervoer erop uit wil, kan met de bus reizen.
Verkoopprocedure
Woonplicht en anti-speculatie beding
Voor het kopen van een appartement in La Rondeur gelden bepaalde voorwaarden. Kopers zijn verplicht het appartement, over een periode van 5 jaar, zelf te bewonen/gebruiken. Binnen deze periode is het alleen mogelijk het appartement door te verkopen met schriftelijke toestemming van de gemeente. Indien de woning tussentijds verkocht (mag) word(t)(en) geldt er een zogenaamd boetebeding waarbij men de gemeente een percentage van de overwaarde van het appartement verschuldigd is. De penthouses vallen buiten deze regeling.
Ondanks dat TW3 Makelaardij deze aanmelding met grote zorgvuldigheid heeft samengesteld, kunnen geen rechten worden ontleend aan teksten, berekeningen, aanbiedingen evenals aan afgebeelde illustraties en artists-impressions, deze zijn uitsluitend bedoeld als voorbeeld en daardoor niet bindend voor het eindresultaat. Alle informatie, ook prijzen en voorwaarden, kunnen aan verandering onderhevig zijn.
Dit wordt een link met de woningzoeker.
Laten zien waar de woning ligt!
Tijdloos
's-gravenzandekoop47 m2 - 104 m2prijs vanaf € 315.000
Houd mij op de hoogte








Follow Us