TijdloosBouwnummer 15
Appartementen
's-gravenzande€ 355.000 vrij op naam63m2Aantal slaapkamers: 2
beschikbaar

Kenmerken van Bouwnummer 15
Kenmerken van Bouwnummer 15
overdracht
koopsom
€ 355.000 vrij op naam
status
beschikbaar
bouw
soort woning
appartement
soort appartement
portiekwoning
bouwvorm
nieuwbouw
bouwjaar
2024
oppervlakte en inhoud
woonoppervlakte
63m2
inhoud
163m3
Aantal slaapkamers
2
energie
isolatie
volledig geisoleerd
buiten
ligging
in woonwijk, vrij uitzicht
tuin type(s)
geen tuin
De bouw gaat starten! Grijp de laatste kans op een woning!
Bouwnummer 15 - kenmerken
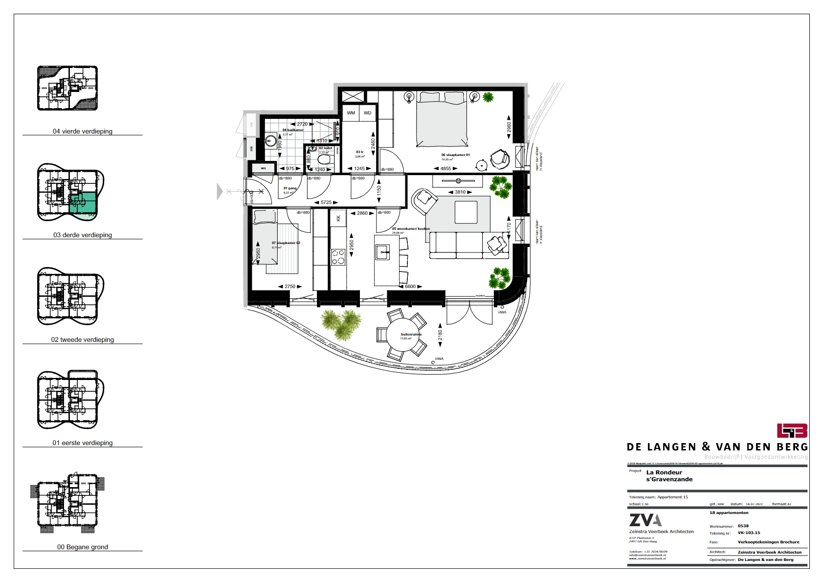
• 3-kamerappartement op de 3e etage
• Woonoppervlak van circa 63 m²
• Living van circa 24 m²
• 2 slaapkamers
• Badkamer en toilet voorzien van tegelwerk en sanitair
• Balkon op het westen, circa 11 m²
• Vloerverwarming
• Eigen berging in de kelder
• PV-paneel
• 1 parkeerplaats *
*Let op: de genoemde prijs is excl. 1 parkeerplaats van € 15.000,- v.o.n.
In La Rondeur ervaart u de luxe van het wonen in een nieuw twee- of driekamer appartement of penthouse. Alle woningen voldoen aan de moderne woonwensen. Denkt u hier bijvoorbeeld aan veel natuurlijk lichtinval door de verdiepingshoge ramen, het feit dat alles gelijkvloers is, een living met open keuken opstelling, een hoog afwerkingsniveau, goede isolatie, vloerverwarming, een fijne buitenruimte en vrij uitzicht. Parkeren kan straks ook eenvoudig op eigen terrein. Kortom, La Rondeur is een kleinschalige ontwikkeling met veel kwaliteiten. Iets om naar uit te kijken!
De woningen
La Rondeur doet zijn naam eer aan met de mooie ronde, golvende gevel. Zelfs de balkons gaan mee in deze beweging. Prachtig.
Het plan omvat 16 betaalbare (tot de NHG grens) appartementen en 2 penthouses. Het woonoppervlak varieert van circa 50 m² tot circa 110 m².
15 van de 16 appartementen zijn ingedeeld met een living met open keuken, twee slaapkamers en een badkamer. Op de begane grond is er een twee-kamer appartement met één slaapkamer. Elk appartement is voorzien van een buitenruimte, op de begane grond is dit een tuin en op de verdiepingen een mooi ruim balkon.
Locatie
Wie kiest voor La Rondeur, kiest voor een rustige, landelijke omgeving in het Westland. De ligging maakt dat u er makkelijk op uit kunt gaan. De oude dorpskern van ’s-Gravenzande met alle voorzieningen is om de hoek. En ook het strand is dichtbij. Den Haag, Delft en Rotterdam zijn eenvoudig te bereiken via N-wegen. Zo staat de N213 bijvoorbeeld in directe verbinding met de A20 richting Rotterdam. Hiernaast komt u via de N222 op de A4 richting Utrecht en Amsterdam. Wie met openbaar vervoer erop uit wil, kan met de bus reizen.
Verkoopprocedure
Woonplicht en anti-speculatie beding
Voor het kopen van een appartement in La Rondeur gelden bepaalde voorwaarden. Kopers zijn verplicht het appartement, over een periode van 10 jaar, zelf te bewonen/gebruiken. Binnen deze periode is het alleen mogelijk het appartement door te verkopen met schriftelijke toestemming van de gemeente. Indien de woning tussentijds verkocht (mag) word(t)(en) geldt er een zogenaamd boetebeding waarbij men de gemeente een percentage van de overwaarde van het appartement verschuldigd is. De penthouses vallen buiten deze regeling.
Voorrang toewijzing bij gemeentelijke registratie
Als woningzoekende in de gemeente Westland kunt u zich inschrijven in het gemeentelijk registratiesysteem voor nieuwbouwwoningen. Hiermee heeft u straks, als de verkoop is gestart en u inschrijft, voorrang op de toewijzing boven degene die niet in dit gemeentelijk woningzoekende bestand zijn opgenomen. Hoe langer u staat ingeschreven, hoe meer kans u maakt om in aanmerking te komen voor het appartement of penthouse van uw voorkeur. Het streven bij toewijzing is een optimale bezetting op eerste voorkeur voor alle bouwnummers.
Ondanks dat TW3 Makelaardij deze aanmelding met grote zorgvuldigheid heeft samengesteld, kunnen geen rechten worden ontleend aan teksten, berekeningen, aanbiedingen evenals aan afgebeelde illustraties en artists-impressions, deze zijn uitsluitend bedoeld als voorbeeld en daardoor niet bindend voor het eindresultaat. Alle informatie, ook prijzen en voorwaarden, kunnen aan verandering onderhevig zijn.
Bouwnummer 15 - kenmerken
• 3-kamerappartement op de 3e etage
• Woonoppervlak van circa 63 m²
• Living van circa 24 m²
• 2 slaapkamers
• Badkamer en toilet voorzien van tegelwerk en sanitair
• Balkon op het westen, circa 11 m²
• Vloerverwarming
• Eigen berging in de kelder
• PV-paneel
• 1 parkeerplaats *
*Let op: de genoemde prijs is excl. 1 parkeerplaats van € 15.000,- v.o.n.
In La Rondeur ervaart u de luxe van het wonen in een nieuw twee- of driekamer appartement of penthouse. Alle woningen voldoen aan de moderne woonwensen. Denkt u hier bijvoorbeeld aan veel natuurlijk lichtinval door de verdiepingshoge ramen, het feit dat alles gelijkvloers is, een living met open keuken opstelling, een hoog afwerkingsniveau, goede isolatie, vloerverwarming, een fijne buitenruimte en vrij uitzicht. Parkeren kan straks ook eenvoudig op eigen terrein. Kortom, La Rondeur is een kleinschalige ontwikkeling met veel kwaliteiten. Iets om naar uit te kijken!
De woningen
La Rondeur doet zijn naam eer aan met de mooie ronde, golvende gevel. Zelfs de balkons gaan mee in deze beweging. Prachtig.
Het plan omvat 16 betaalbare (tot de NHG grens) appartementen en 2 penthouses. Het woonoppervlak varieert van circa 50 m² tot circa 110 m².
15 van de 16 appartementen zijn ingedeeld met een living met open keuken, twee slaapkamers en een badkamer. Op de begane grond is er een twee-kamer appartement met één slaapkamer. Elk appartement is voorzien van een buitenruimte, op de begane grond is dit een tuin en op de verdiepingen een mooi ruim balkon.
Locatie
Wie kiest voor La Rondeur, kiest voor een rustige, landelijke omgeving in het Westland. De ligging maakt dat u er makkelijk op uit kunt gaan. De oude dorpskern van ’s-Gravenzande met alle voorzieningen is om de hoek. En ook het strand is dichtbij. Den Haag, Delft en Rotterdam zijn eenvoudig te bereiken via N-wegen. Zo staat de N213 bijvoorbeeld in directe verbinding met de A20 richting Rotterdam. Hiernaast komt u via de N222 op de A4 richting Utrecht en Amsterdam. Wie met openbaar vervoer erop uit wil, kan met de bus reizen.
Verkoopprocedure
Woonplicht en anti-speculatie beding
Voor het kopen van een appartement in La Rondeur gelden bepaalde voorwaarden. Kopers zijn verplicht het appartement, over een periode van 10 jaar, zelf te bewonen/gebruiken. Binnen deze periode is het alleen mogelijk het appartement door te verkopen met schriftelijke toestemming van de gemeente. Indien de woning tussentijds verkocht (mag) word(t)(en) geldt er een zogenaamd boetebeding waarbij men de gemeente een percentage van de overwaarde van het appartement verschuldigd is. De penthouses vallen buiten deze regeling.
Voorrang toewijzing bij gemeentelijke registratie
Als woningzoekende in de gemeente Westland kunt u zich inschrijven in het gemeentelijk registratiesysteem voor nieuwbouwwoningen. Hiermee heeft u straks, als de verkoop is gestart en u inschrijft, voorrang op de toewijzing boven degene die niet in dit gemeentelijk woningzoekende bestand zijn opgenomen. Hoe langer u staat ingeschreven, hoe meer kans u maakt om in aanmerking te komen voor het appartement of penthouse van uw voorkeur. Het streven bij toewijzing is een optimale bezetting op eerste voorkeur voor alle bouwnummers.
Ondanks dat TW3 Makelaardij deze aanmelding met grote zorgvuldigheid heeft samengesteld, kunnen geen rechten worden ontleend aan teksten, berekeningen, aanbiedingen evenals aan afgebeelde illustraties en artists-impressions, deze zijn uitsluitend bedoeld als voorbeeld en daardoor niet bindend voor het eindresultaat. Alle informatie, ook prijzen en voorwaarden, kunnen aan verandering onderhevig zijn.
Dit wordt een link met de woningzoeker.
Laten zien waar de woning ligt!
Tijdloos
's-gravenzandekoop47 m2 - 104 m2prijs vanaf € 315.000
Houd mij op de hoogte










Follow Us