TijdloosBouwnummer 5
Appartementen
's-gravenzande€ 338.000 vrij op naam60m2Aantal slaapkamers: 2
beschikbaar

Kenmerken van Bouwnummer 5
Kenmerken van Bouwnummer 5
overdracht
koopsom
€ 338.000 vrij op naam
status
beschikbaar
bouw
soort woning
appartement
soort appartement
portiekwoning
woonlaag
1
bouwvorm
nieuwbouw
bouwjaar
2024
oppervlakte en inhoud
woonoppervlakte
60m2
inhoud
156m3
Aantal slaapkamers
2
energie
energielabel
A
isolatie
volledig geisoleerd
buiten
ligging
in woonwijk, vrij uitzicht
tuin type(s)
geen tuin
Bouw gestart juni 2023! Grijp de laatste kans op een woning!
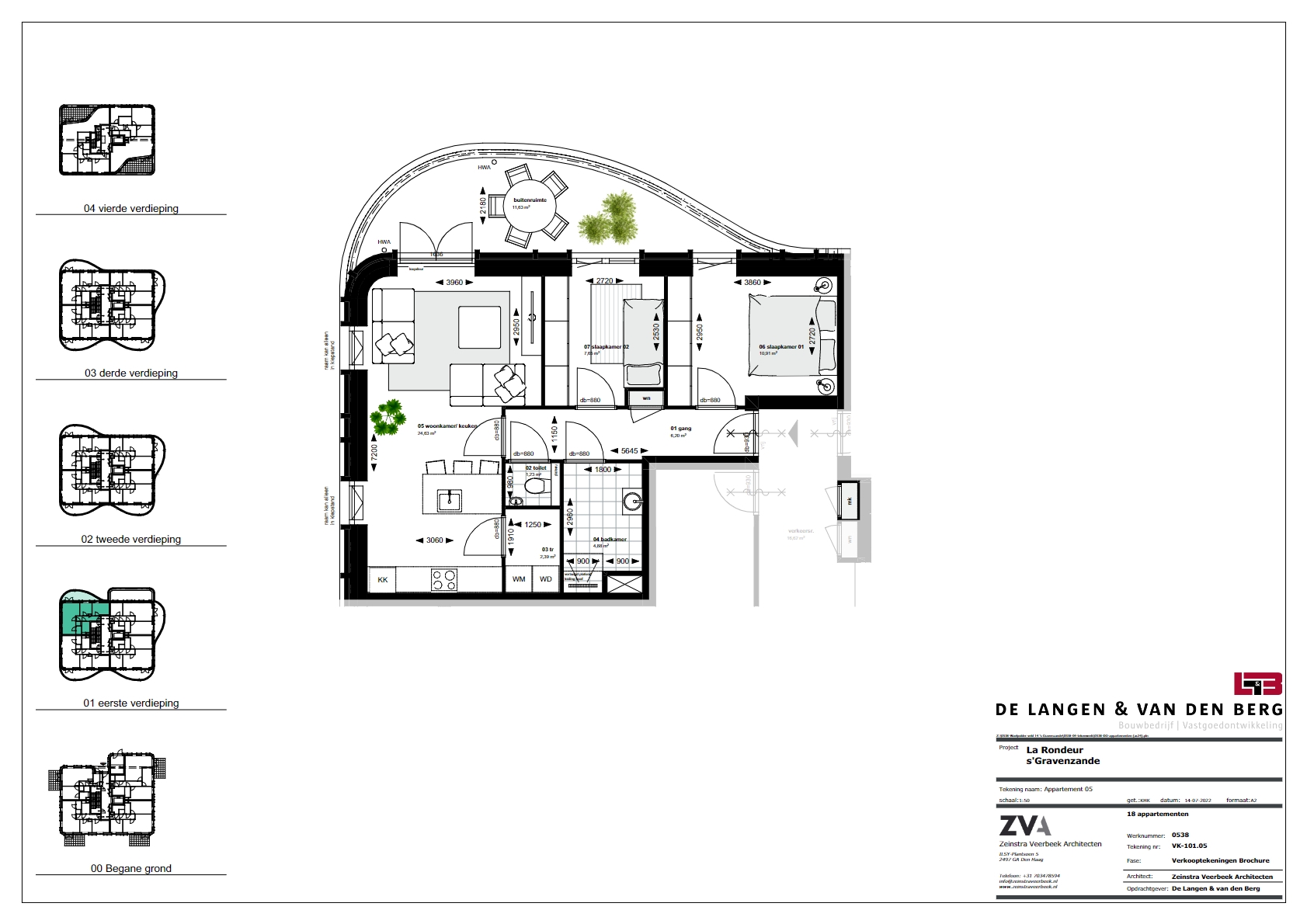
Bouwnummer 5 - kenmerken
• 3-kamerappartement op 1e etage
• Woonoppervlak van circa 60 m²
• Living van circa 25 m²
• 2 slaapkamers
• Badkamer en toilet voorzien van tegelwerk en sanitair
• Balkon op het oosten, circa 11 m²
• Vloerverwarming
• Eigen berging in de kelder
• PV-paneel
• mogelijkheid tot kopen van 1 parkeerplaats van €15.000, -
In La Rondeur ervaart u de luxe van het wonen in een nieuw twee- of driekamer appartement of penthouse. Alle woningen voldoen aan de moderne woonwensen. Denkt u hier bijvoorbeeld aan veel natuurlijk lichtinval door de verdiepingshoge ramen, het feit dat alles gelijkvloers is, een living met open keuken opstelling, een hoog afwerkingsniveau, goede isolatie, vloerverwarming, een fijne buitenruimte en vrij uitzicht. Parkeren kan straks ook eenvoudig op eigen terrein. Kortom, La Rondeur is een kleinschalige ontwikkeling met veel kwaliteiten. Iets om naar uit te kijken!
De woningen
La Rondeur doet zijn naam eer aan met de mooie ronde, golvende gevel. Zelfs de balkons gaan mee in deze beweging. Prachtig.
Het plan omvat 16 betaalbare (tot de NHG grens) appartementen en 2 penthouses. Het woonoppervlak varieert van circa 50 m² tot circa 110 m².
15 van de 16 appartementen zijn ingedeeld met een living met open keuken, twee slaapkamers en een badkamer. Op de begane grond is er een twee-kamer appartement met één slaapkamer. Elk appartement is voorzien van een buitenruimte, op de begane grond is dit een tuin en op de verdiepingen een mooi ruim balkon.
Locatie
Wie kiest voor La Rondeur, kiest voor een rustige, landelijke omgeving in het Westland. De ligging maakt dat u er makkelijk op uit kunt gaan. De oude dorpskern van ’s-Gravenzande met alle voorzieningen is om de hoek. En ook het strand is dichtbij. Den Haag, Delft en Rotterdam zijn eenvoudig te bereiken via N-wegen. Zo staat de N213 bijvoorbeeld in directe verbinding met de A20 richting Rotterdam. Hiernaast komt u via de N222 op de A4 richting Utrecht en Amsterdam. Wie met openbaar vervoer erop uit wil, kan met de bus reizen.
Verkoopprocedure
Woonplicht en anti-speculatie beding
Voor het kopen van een appartement in La Rondeur gelden bepaalde voorwaarden. Kopers zijn verplicht het appartement, over een periode van 5 jaar, zelf te bewonen/gebruiken. Binnen deze periode is het alleen mogelijk het appartement door te verkopen met schriftelijke toestemming van de gemeente. Indien de woning tussentijds verkocht (mag) word(t)(en) geldt er een zogenaamd boetebeding waarbij men de gemeente een percentage van de overwaarde van het appartement verschuldigd is. De penthouses vallen buiten deze regeling.
Ondanks dat TW3 Makelaardij deze aanmelding met grote zorgvuldigheid heeft samengesteld, kunnen geen rechten worden ontleend aan teksten, berekeningen, aanbiedingen evenals aan afgebeelde illustraties en artists-impressions, deze zijn uitsluitend bedoeld als voorbeeld en daardoor niet bindend voor het eindresultaat. Alle informatie, ook prijzen en voorwaarden, kunnen aan verandering onderhevig zijn.
Bouwnummer 5 - kenmerken
• 3-kamerappartement op 1e etage
• Woonoppervlak van circa 60 m²
• Living van circa 25 m²
• 2 slaapkamers
• Badkamer en toilet voorzien van tegelwerk en sanitair
• Balkon op het oosten, circa 11 m²
• Vloerverwarming
• Eigen berging in de kelder
• PV-paneel
• mogelijkheid tot kopen van 1 parkeerplaats van €15.000, -
In La Rondeur ervaart u de luxe van het wonen in een nieuw twee- of driekamer appartement of penthouse. Alle woningen voldoen aan de moderne woonwensen. Denkt u hier bijvoorbeeld aan veel natuurlijk lichtinval door de verdiepingshoge ramen, het feit dat alles gelijkvloers is, een living met open keuken opstelling, een hoog afwerkingsniveau, goede isolatie, vloerverwarming, een fijne buitenruimte en vrij uitzicht. Parkeren kan straks ook eenvoudig op eigen terrein. Kortom, La Rondeur is een kleinschalige ontwikkeling met veel kwaliteiten. Iets om naar uit te kijken!
De woningen
La Rondeur doet zijn naam eer aan met de mooie ronde, golvende gevel. Zelfs de balkons gaan mee in deze beweging. Prachtig.
Het plan omvat 16 betaalbare (tot de NHG grens) appartementen en 2 penthouses. Het woonoppervlak varieert van circa 50 m² tot circa 110 m².
15 van de 16 appartementen zijn ingedeeld met een living met open keuken, twee slaapkamers en een badkamer. Op de begane grond is er een twee-kamer appartement met één slaapkamer. Elk appartement is voorzien van een buitenruimte, op de begane grond is dit een tuin en op de verdiepingen een mooi ruim balkon.
Locatie
Wie kiest voor La Rondeur, kiest voor een rustige, landelijke omgeving in het Westland. De ligging maakt dat u er makkelijk op uit kunt gaan. De oude dorpskern van ’s-Gravenzande met alle voorzieningen is om de hoek. En ook het strand is dichtbij. Den Haag, Delft en Rotterdam zijn eenvoudig te bereiken via N-wegen. Zo staat de N213 bijvoorbeeld in directe verbinding met de A20 richting Rotterdam. Hiernaast komt u via de N222 op de A4 richting Utrecht en Amsterdam. Wie met openbaar vervoer erop uit wil, kan met de bus reizen.
Verkoopprocedure
Woonplicht en anti-speculatie beding
Voor het kopen van een appartement in La Rondeur gelden bepaalde voorwaarden. Kopers zijn verplicht het appartement, over een periode van 5 jaar, zelf te bewonen/gebruiken. Binnen deze periode is het alleen mogelijk het appartement door te verkopen met schriftelijke toestemming van de gemeente. Indien de woning tussentijds verkocht (mag) word(t)(en) geldt er een zogenaamd boetebeding waarbij men de gemeente een percentage van de overwaarde van het appartement verschuldigd is. De penthouses vallen buiten deze regeling.
Ondanks dat TW3 Makelaardij deze aanmelding met grote zorgvuldigheid heeft samengesteld, kunnen geen rechten worden ontleend aan teksten, berekeningen, aanbiedingen evenals aan afgebeelde illustraties en artists-impressions, deze zijn uitsluitend bedoeld als voorbeeld en daardoor niet bindend voor het eindresultaat. Alle informatie, ook prijzen en voorwaarden, kunnen aan verandering onderhevig zijn.
Dit wordt een link met de woningzoeker.
Laten zien waar de woning ligt!
Tijdloos
's-gravenzandekoop47 m2 - 104 m2prijs vanaf € 315.000
Houd mij op de hoogte










Follow Us